
ITALAR: Luciana com um teto seguro!
Nossa Agente de Serviços Gerais, Luciana precisa de toda ajuda possível!
A casa, conquistada com muito esforço e sacrifícios, ameaça desabar devido a uma obra irregular ocorrida que, não garantiu os pilares e base necessárias para sustentação do imóvel. Seu Lar, que deveria ser um lugar seguro para lhe acolher ao final de um dia de trabalho cansativo, é motivo de medo e insônia.
Com um único rendimento mensal de aproximadamente um salário mínimo, se torna impossível assumir esta obra sozinha.
Ao sabermos dos riscos a que ela e seu filho estavam expostos, a equipe do CEEFTI Itagiba Escobar se mobilizou para entender, tecnicamente, a situação. A partir de então, foi iniciado o processo de busca de solução deste grave problema e assim, ser devolvido o sono tranquilo de nossa amiga. Contamos com seu apoio.




A Casa só tem 4 colunas verticais. O piso está cedendo. Não há segurança nenhuma.
Em visita técnica, na casa de Luciana em que esteve presente, Ivanete (diretora da escola), Jovanis (professor de Matemática com formação em Engenharia) e Wanildo (professor de Geografia) verificou-se o que será necessário fazer com urgência.


Será preciso 8 vigas verticais de 2,80m e 5 vigas de 9,0 m para o cintamento superior que dará o reforço imediato da estrutura.
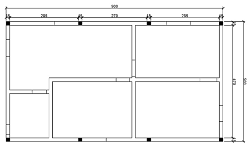
Planta Baixa

Essa é a planta da casa de Luciana dividida em 5 cômodos. As marcações indicam os 8 pontos de fundações para serem feitas e todo Cintamento (vigas no contorno) superior da casa.
MATERIAL:
VALOR DE MATERIAL: 5.800,00
VALOR TOTAL APROXIMADO: 10.000,00
Participe desta campanha!

TODO DINHEIRO ARRECADADO SERÁ REVERTIDO PARA MELHORIAS DA RESIDÊNCIA!
Como diria o poeta, um mais um é sempre mais que dois!
